-
Donnons forme à vos projets de construction
Ozturk Dessin GC est spécialisé dans le dessin technique et la conception en génie civil. Découvrez nos services en un coup d’œil :
-
-
-
Dessin technique
La précision au service de vos projets
Nous réalisons des plans techniques détaillés
pour assurer la réussite de vos constructions
et garantir la conformité aux normes.

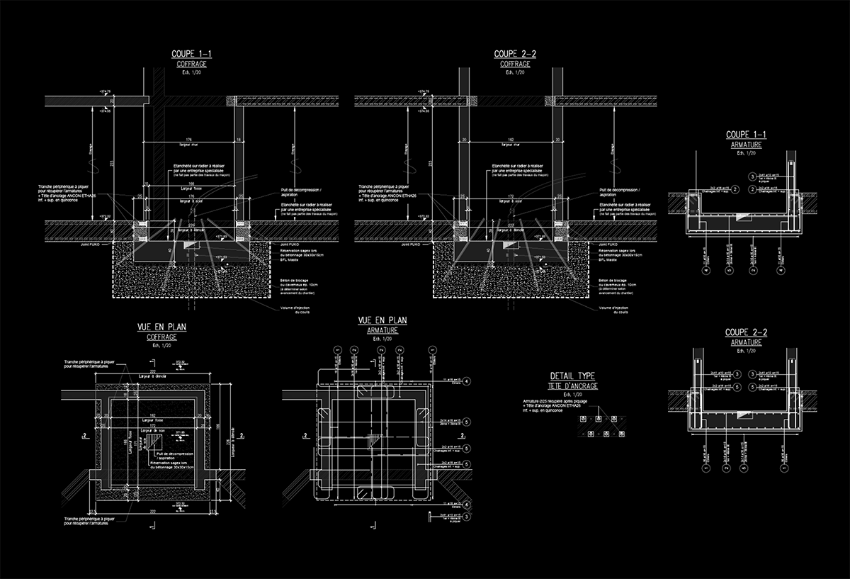
Plans de coffrage et d’armature
Conception de plans précis pour le béton armé, garantissant sécurité et optimisation des matériaux.

Plans de canalisations, terrassement et travaux spéciaux
Élaboration des plans techniques suivant les différentes contraintes et assurer une exécution sans imprévu.

Plans d’assemblage pour structures métalliques
Détails complets pour faciliter la fabrication et le montage sur chantier.

Plans de coffrage et d’armature
Conception de plans précis pour le béton armé, garantissant sécurité et optimisation des matériaux.

Plans de canalisations, terrassement et travaux spéciaux
Élaboration des plans techniques suivant les différentes contraintes et assurer une exécution sans imprévu.

Plans d’assemblage pour structures métalliques
Détails complets pour faciliter la fabrication et le montage sur chantier.
Travailler avec OZ Dessin
Une méthode claire, un accompagnement sur mesure
Notre processus vous assure un suivi rigoureux et des
solutions adaptées à vos besoins.

Transmission des informations du projet
Vous nous fournissez vos données (plans, fichiers, exigences) pour que nous comprenions vos attentes.

Identification des complexités
Nous analysons les possibles contraintes techniques, réglementaires ou structurelles propres à votre projet.

Apport de solutions applicables
Nous proposons des options concrètes et réalisables pour garantir la faisabilité et la qualité du chantier.

Transmission des informations du projet
Vous nous fournissez vos données (plans, fichiers, exigences) pour que nous comprenions vos attentes.

Identification des complexités
Nous analysons les possibles contraintes techniques, réglementaires ou structurelles propres à votre projet.

Apport de solutions applicables
Nous proposons des options concrètes et réalisables pour garantir la faisabilité et la qualité du chantier.
Métrés
Des estimations fiables pour vos projets
Nous réalisons des métrés précis, aussi bien pour les appels d’offres que pour les phases finales de chantier.

Métrés pour soumission
Estimations claires et détaillées pour établir des offres compétitives.

Métrés pour fin de chantier
Vérification des quantités réelles exécutées et régularisation des coûts.

Outils de calcul précis
Utilisation de logiciels et méthodes modernes pour une exactitude optimale.

Métrés pour soumission
Estimations claires et détaillées pour établir des offres compétitives.

Métrés pour fin de chantier
Vérification des quantités réelles exécutées et régularisation des coûts.

Outils de calcul précis
Utilisation de logiciels et méthodes modernes pour une exactitude optimale.
Suivi de chantier
Un accompagnement sur le terrain
Nous ne nous arrêtons pas au dessin : nous assurons également
un suivi technique pour garantir la qualité d’exécution.

Séances de chantier
Coordination régulière avec les équipes pour un avancement maîtrisé.

Contrôles d’armature
Vérification des armatures avant coulage pour assurer la conformité.

Suivi global
Contrôle continu des étapes clés pour anticiper et résoudre les imprévus.
Nos réalisations
FAQ
Questions fréquentes
Quels types de projets prenez-vous en charge ?
Nous travaillons sur des projets de construction variés : bâtiments,
infrastructures, génie civil, structures métalliques.
Pouvez-vous intervenir en cours de chantier ?
Oui, nous assurons aussi le suivi et le contrôle des travaux en cours.
Comment transmet-on les informations de projet ?
Vous pouvez nous fournir vos données numériques
(plans, fichiers CAD, PDF) ou documents papier.
Travaillez-vous avec des bureaux d’ingénieurs et des architectes ?
Absolument, nous collaborons étroitement avec les
différents acteurs du projet.
Proposez-vous des devis ?
Oui, chaque demande fait l’objet d’une estimation personnalisée et gratuite.